Deaktivieren Sie Elemente, die Sie nicht für die Druckansicht benötigen.

Notizen
Jetzt drucken

Teilsanierte Doppelhaushälfte in ruhiger Wohngegend von Zeitz

Objektnummer: A770

06712 Zeitz
PLZ, Ort
65.000,00 EUR
Kaufpreis
Die Käuferprovision beträgt 3,57% inkl. 19% MwSt.

Weitere Informationen

Baujahr
1925
Anzahl der Stellplätze
2
Befeuerungsart
Gas

Objektbeschreibung und Ausstattung

LAGE
- ruhige Lage in Zeitz, nur 5 Autominuten ins Stadtzentrum
___________________________________________________________

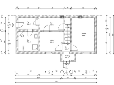
RAUMAUFTEILUNG
- Erdgeschoss: Bad, Küche, Wohnzimmer
- Obergeschoss: Schlafzimmer, Kinderzimmer
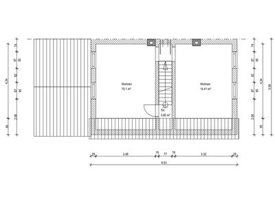
- Dachgeschoss: Gästezimmer, Kinderzimmer
__________________________________________________________

AUSSTATTUNG
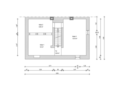
- Vollkeller
- Abwasser zentral angeschlossen
- Carport
- Garten mit Obstbäumen
___________________________________________________________

SANIERUNG
- Gastherme 2015
- Fenster 2000
- Dach Haupthaus 1997
- Dach Anbau 2018
- Elektro 1997
- Böden, Wände und Decken müssten erneuert werden
- keine Heizung im Dachgeschoss

Um das Haus auf aktuelle Wohnstandards zu bringen, muss noch investiert werden. Die Wände weisen stellenweise Stockflecken auf und in der Küche hängen die Deckenpaneelen an einer Stelle durch.
___________________________________________________________

Die Käuferprovision beträgt 3,57% inkl. 19% MwSt.

Wichtige Hinweise

Auskünfte zur genauen Lage und weitere Unterlagen sind erst nach Kontakt und akzeptieren der Maklervereinbarung erhältlich, welche Sie per Mail übermittelt bekommen.

Die Haftung für Objektdaten ist ausgeschlossen, im Zweifel sind die Angaben des Eigentümers und die tatsächlichen Objektgegebenheiten maßgebend. Es wird daher angeraten, diese vor Ort selbst zu prüfen. Alle Angebote sind freibleibend und vorbehaltlich Irrtümer und Änderungen.

Geldwäschegesetz (GwG): Von gesetzlicher Seite sind wir dazu verpflichtet, bei der Begründung einer Geschäftsbeziehung die Identität der Vertragspartner festzustellen und zu prüfen.

Energieausweis Angaben

Befeuerungsart
Gas
Energieausweis Art
Verbrauchsausweis
Energieverbrauch Kennwert
158,60kWh / (m²*a)
Mit Warmwasser
Ja
Wertklasse
F

Kontaktieren Sie uns

Sie haben eine konkrete Frage rund um das Thema Immobilien oder Planen den Verkauf einer Immobilie? Sie wünschen sich eine umfassende und fachkundige Beratung? Zögern Sie nicht uns zu kontaktieren. Wir helfen Ihnen gern und sind für Sie da.

der Geschäftsführer und seine Mitarbeiterin lächeln

Rudolf-Diener-Str. 9
Eingang Humboldtstraße
07545 Gera

Telefon: 0365 - 2262 7022

E-Mail: ds@poltsch-immo.de


Objekt Bilder